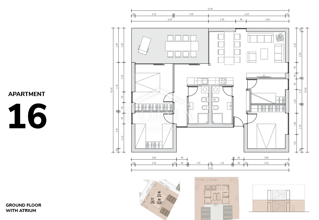
REC ID# 1239777 - BRTONIGLA