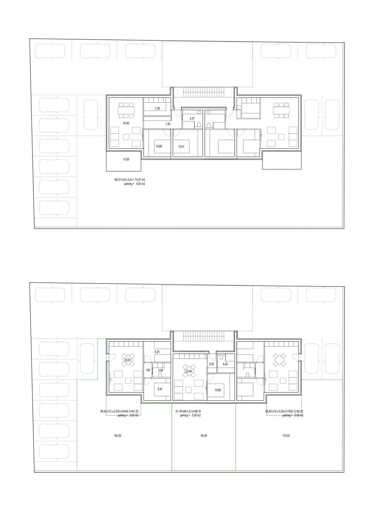
REC ID# 1244340 - BRODARICA