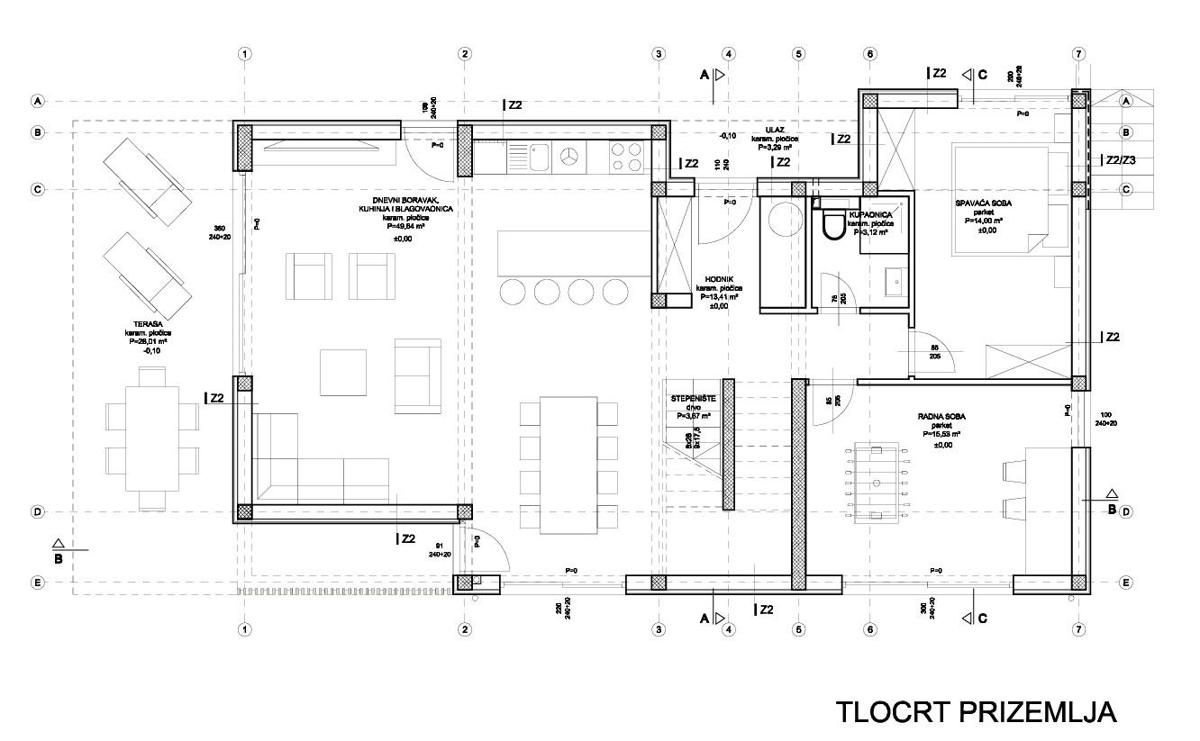
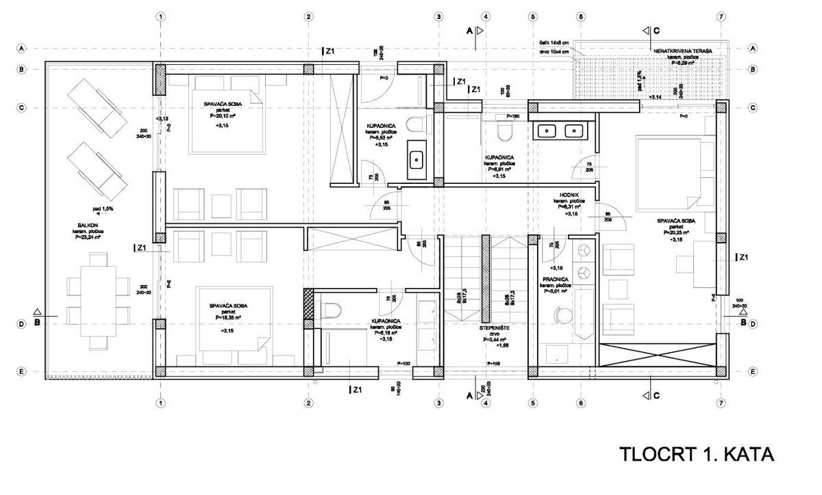
REC ID# 1227557 - ŽABORIĆ