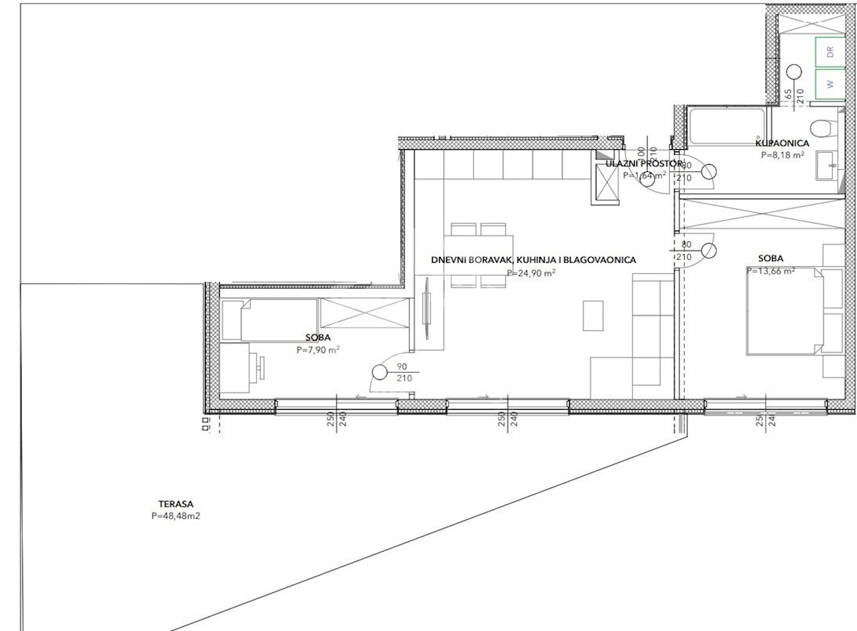
REC ID# 873659 - ČIOVO