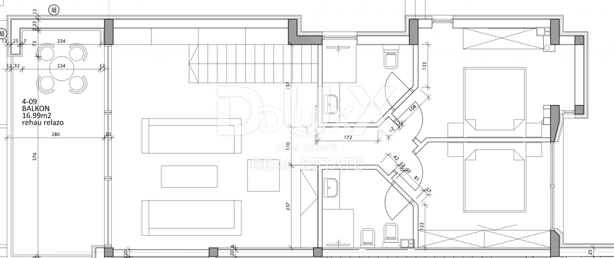
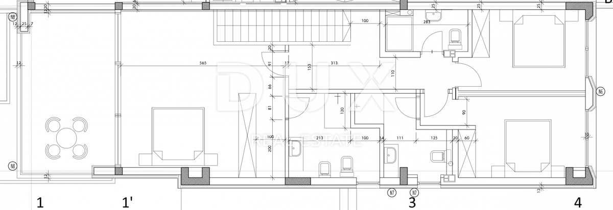
REC ID# 1231524 - VEPRINAC