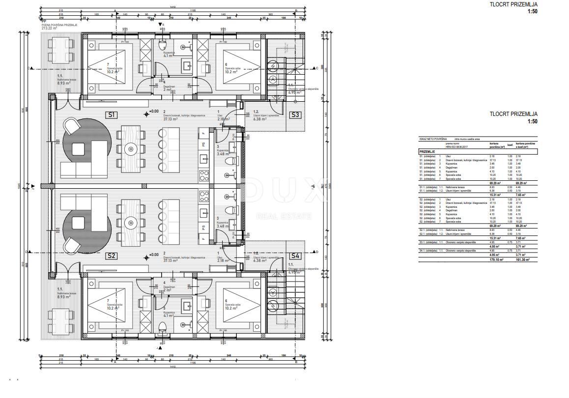
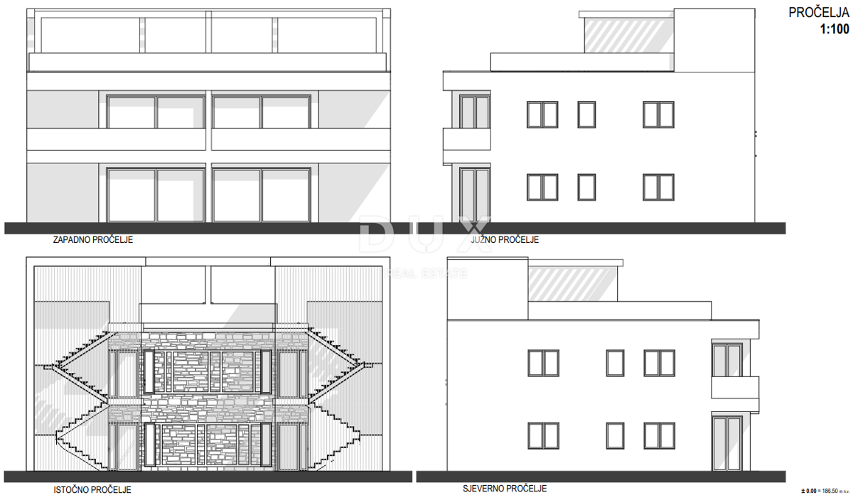
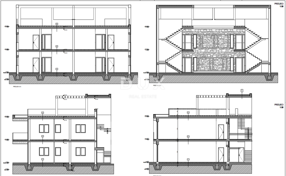
REC ID# 1243971 - VABRIGA