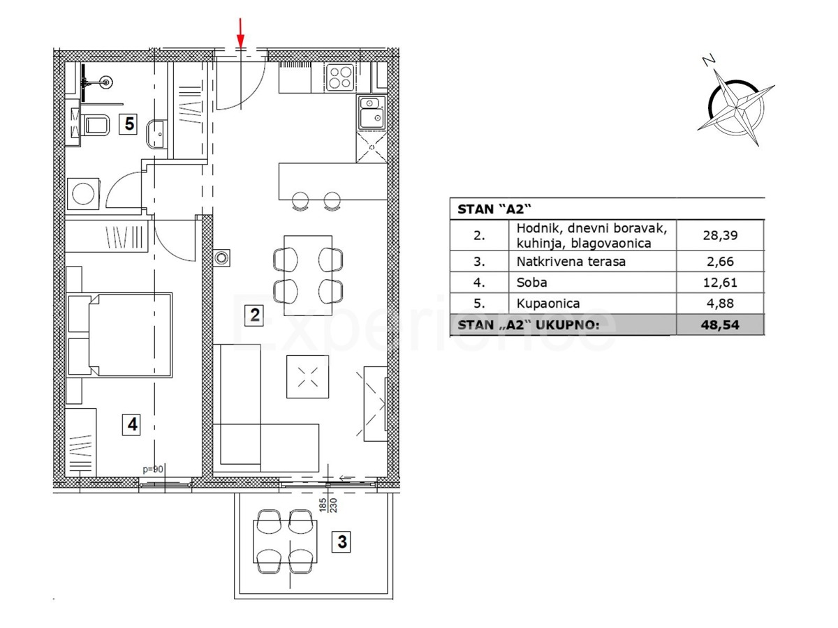
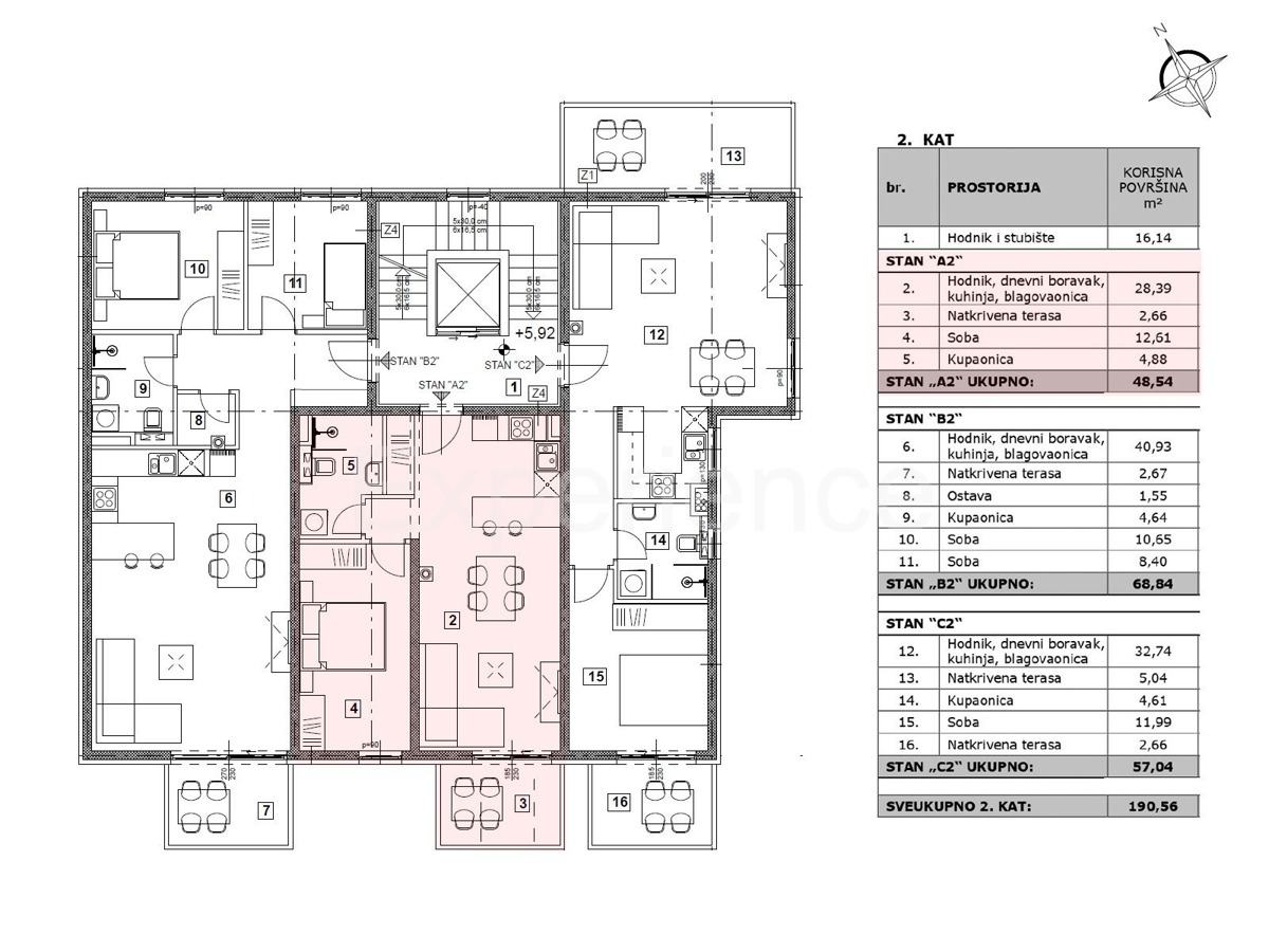
REC ID# 1233449 - VABRIGA