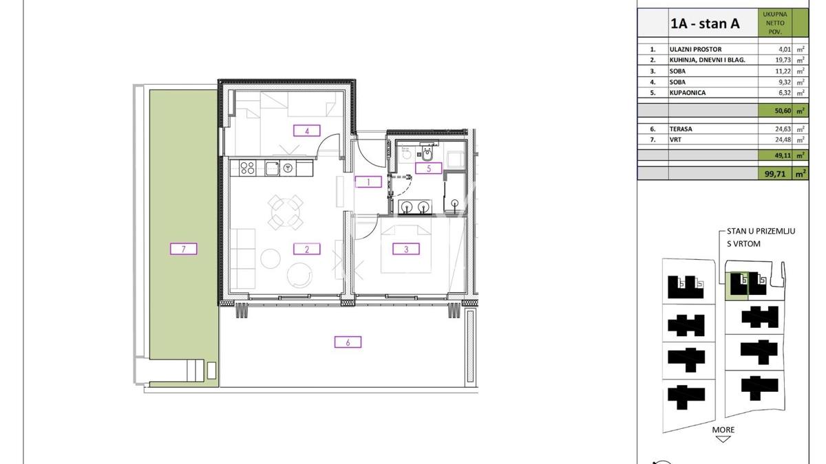
REC ID# 1232850 - TURANJ