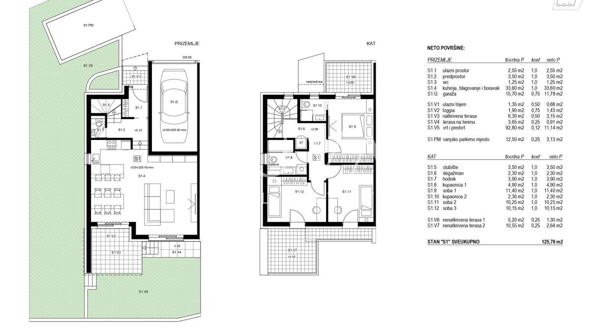
REC ID# 1232755 - STENJEVAC