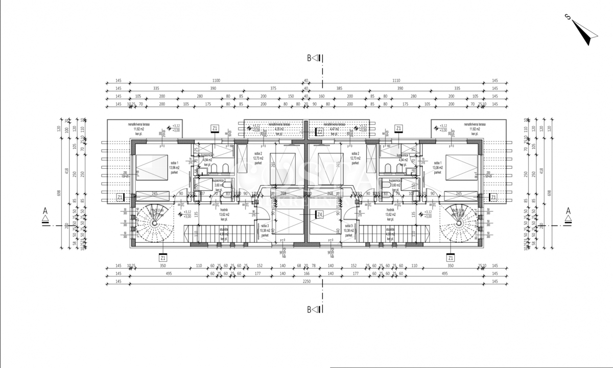
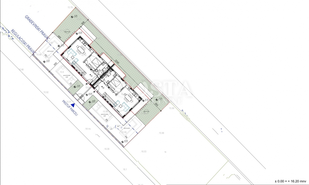
REC ID# 1247140 - SABUNIKE