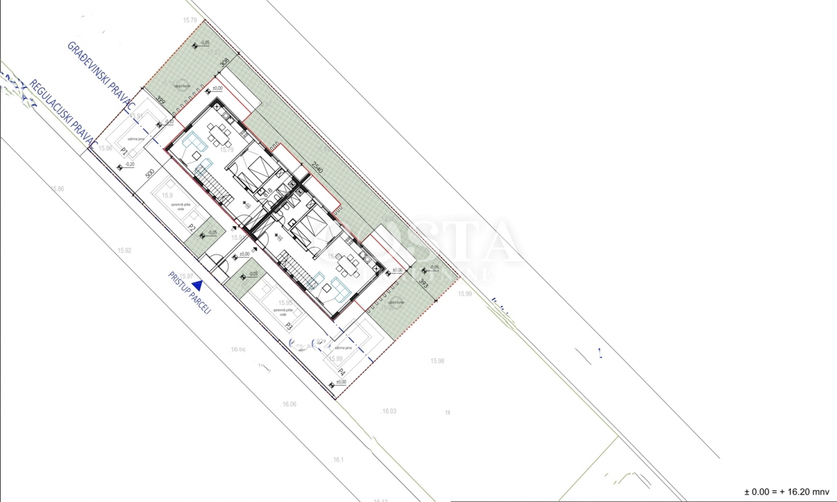
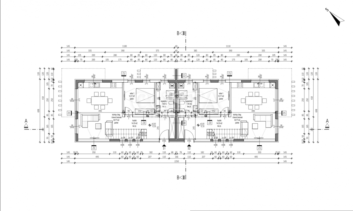
REC ID# 1247139 - SABUNIKE