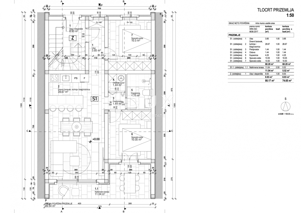
REC ID# 1221301 - ROVINJSKO SELO