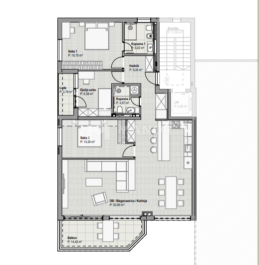
REC ID# 1236998 - RIJEKA