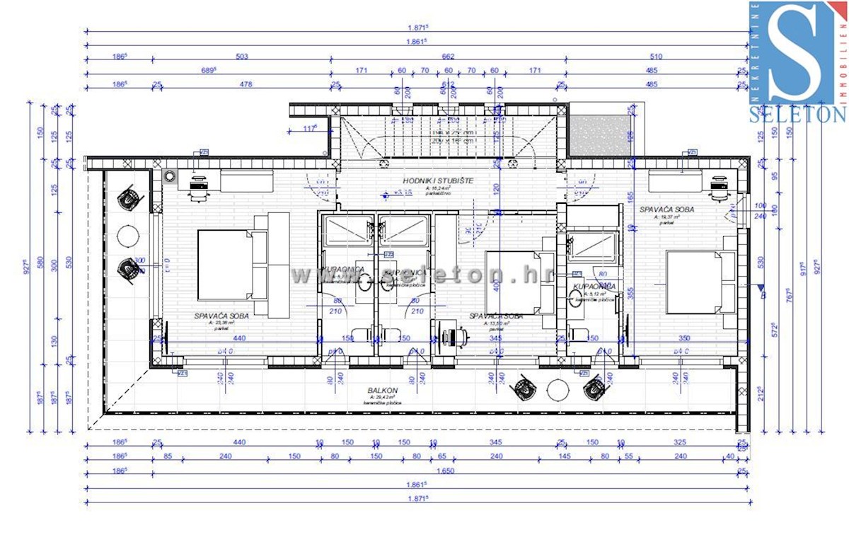
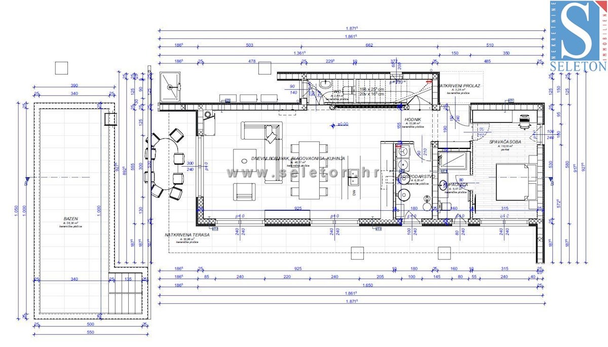
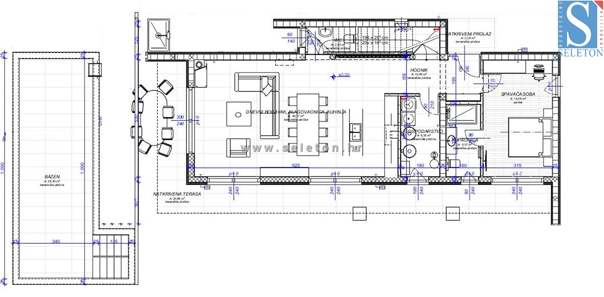
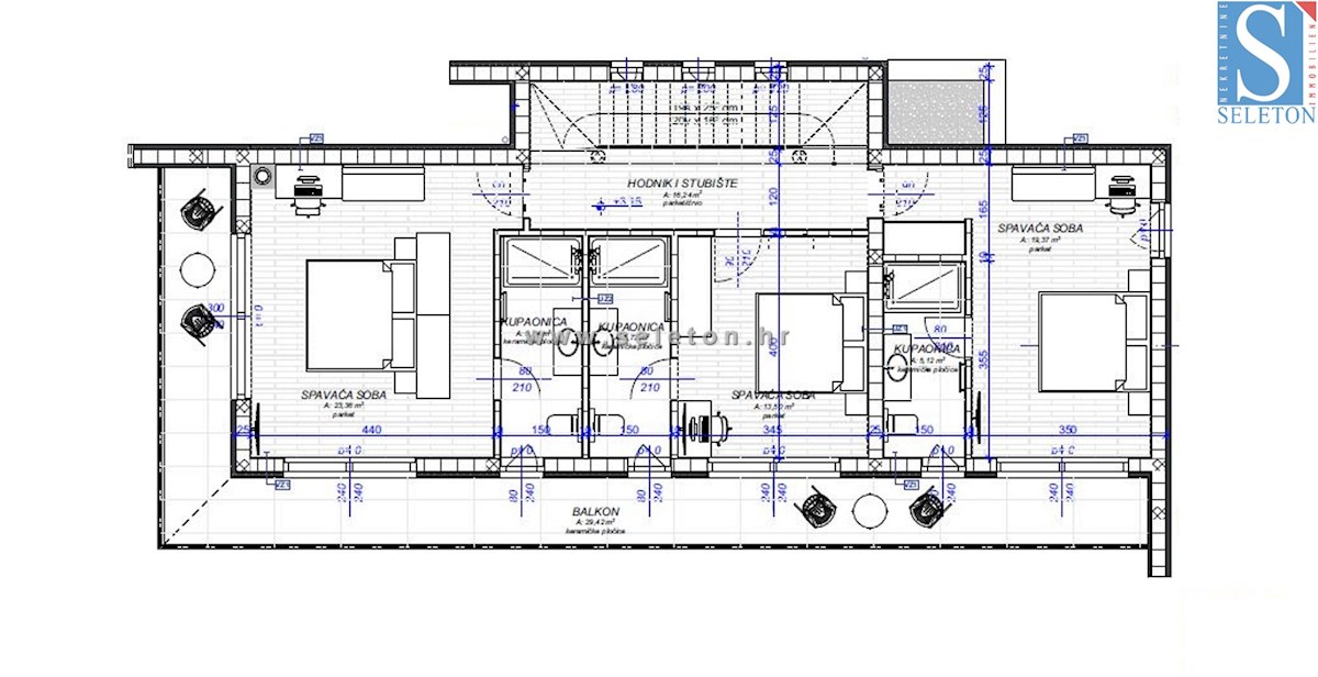
REC ID# 1181916 - POREČ