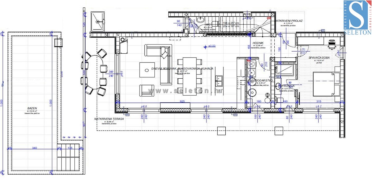
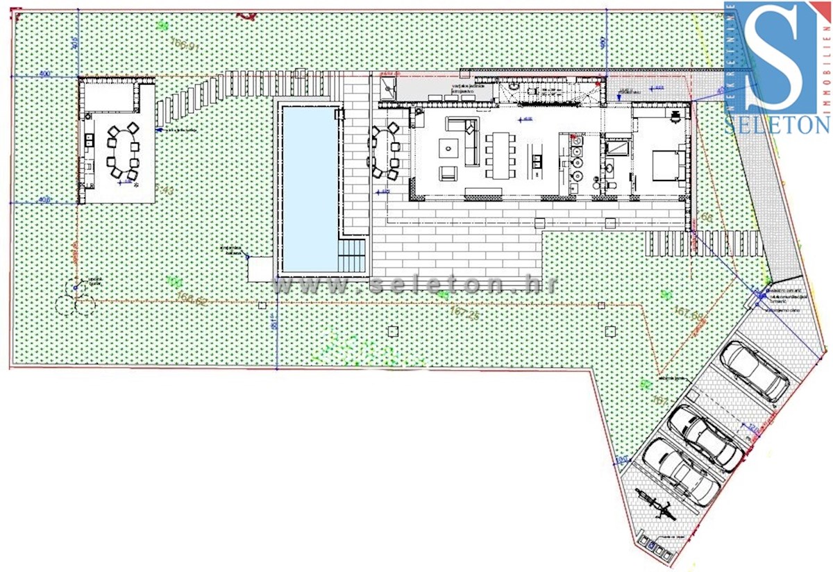
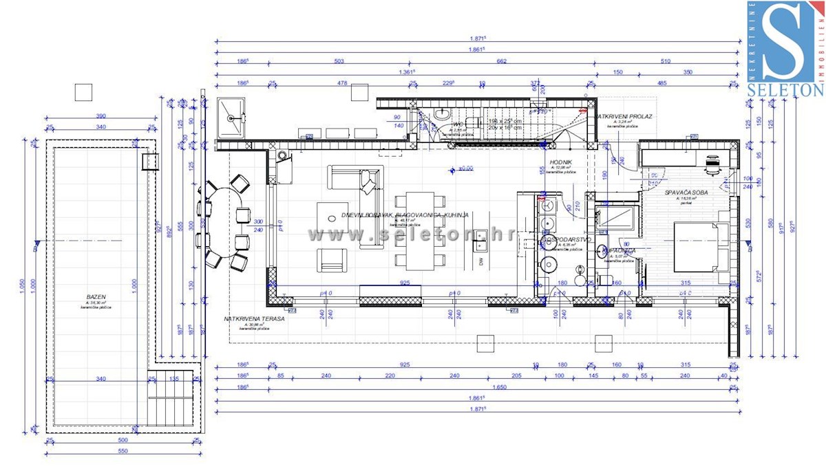
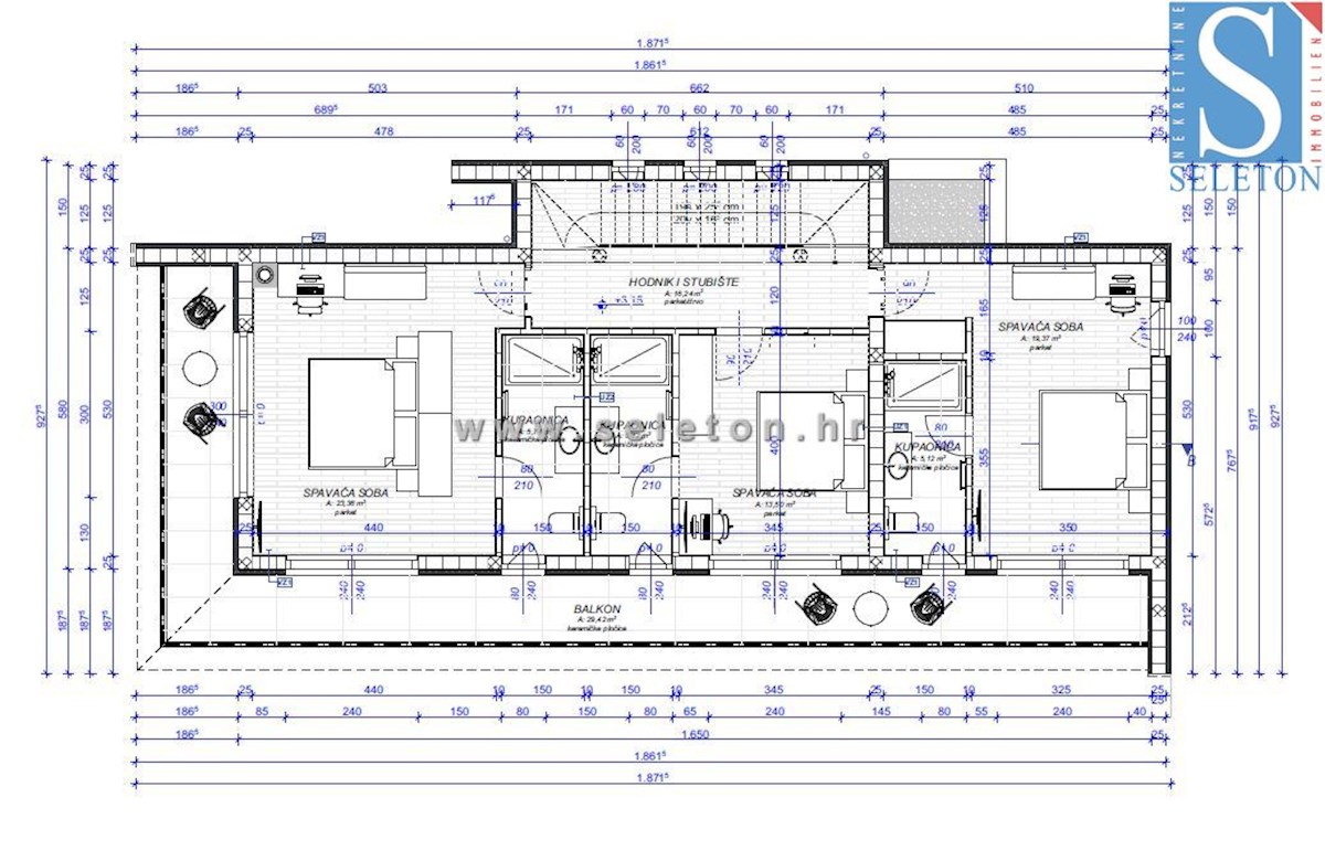
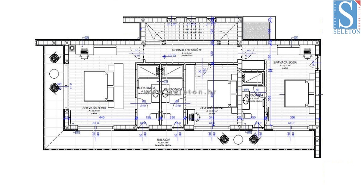
REC ID# 1066108 - POREČ