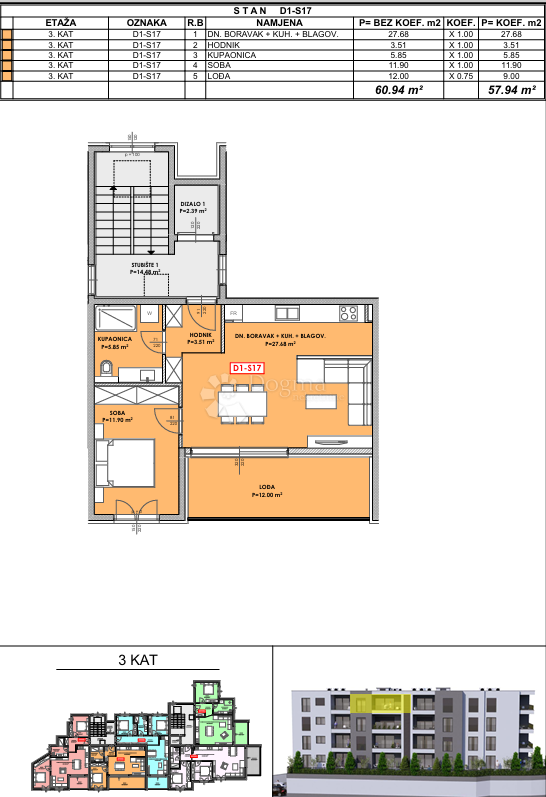
REC ID# 1234962 - OMIŠ