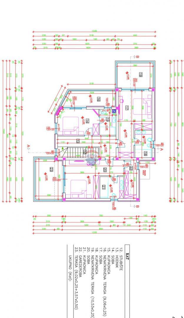
REC ID# 1203032 - MUNTRILJ