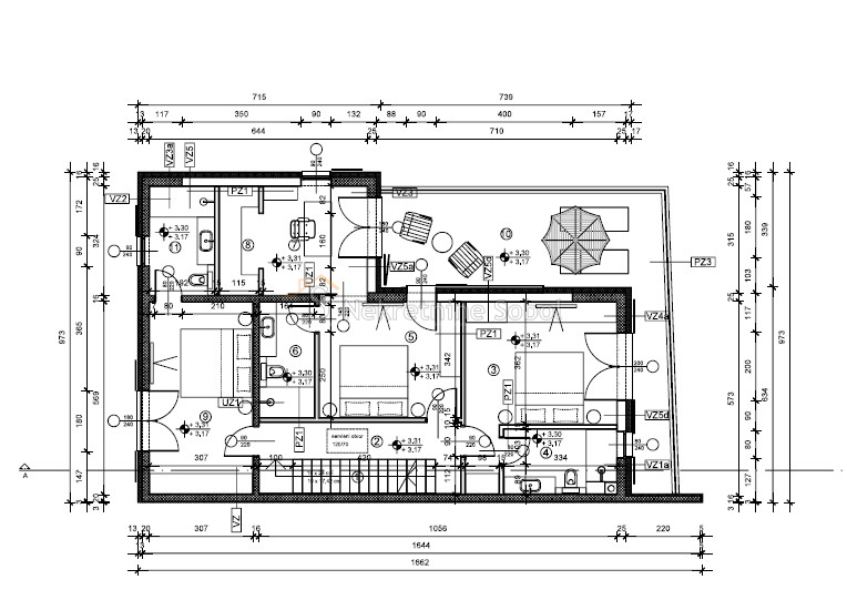
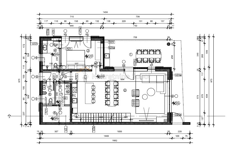
REC ID# 1230006 - MIHOLAŠĆICA