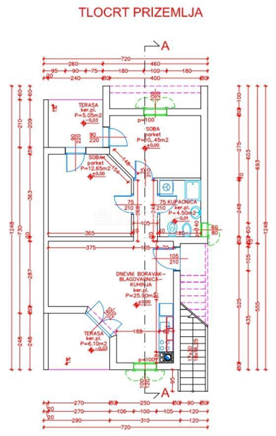
REC ID# 1109241 - MEDULIN