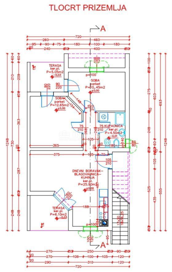
REC ID# 1109234 - MEDULIN