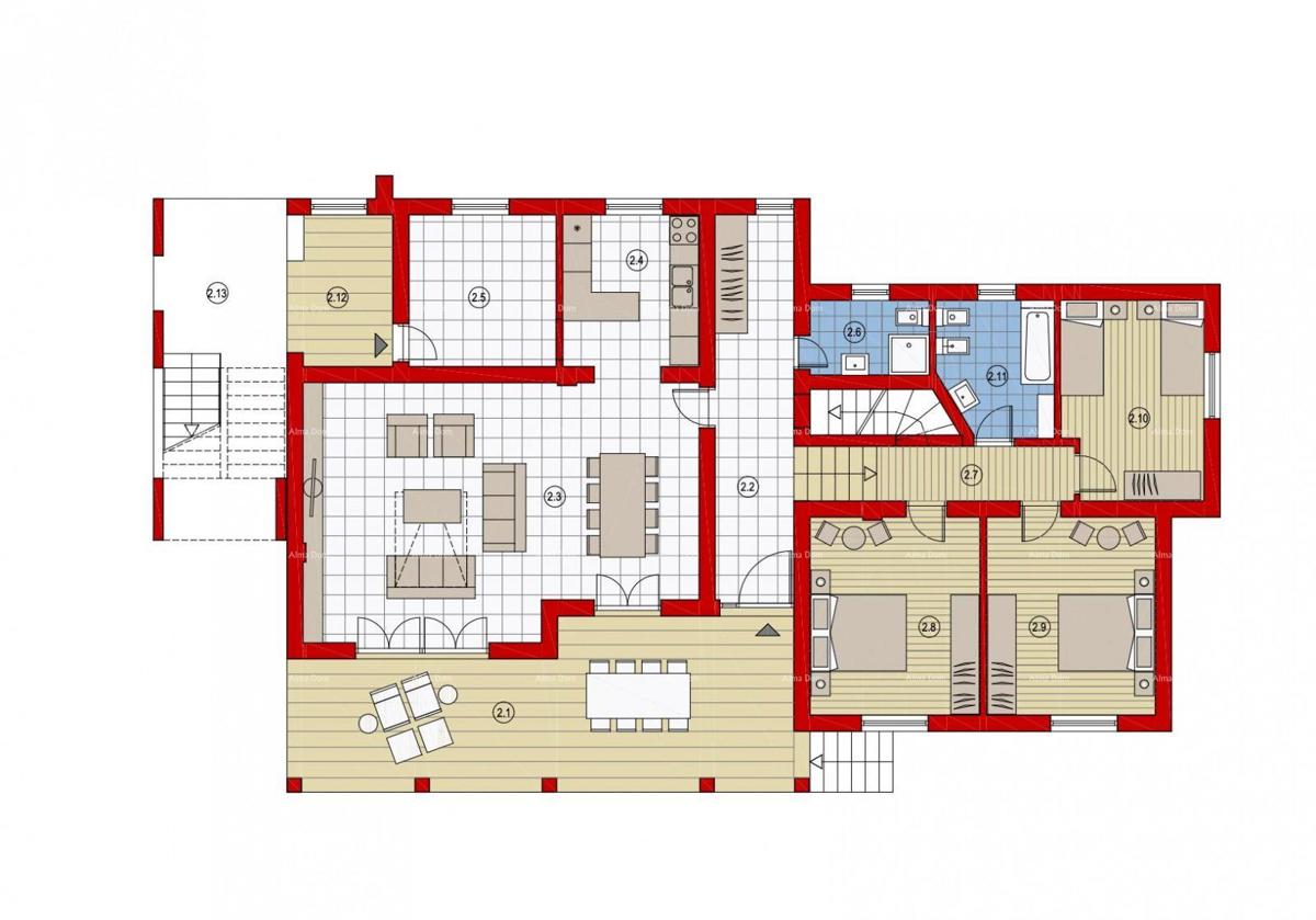
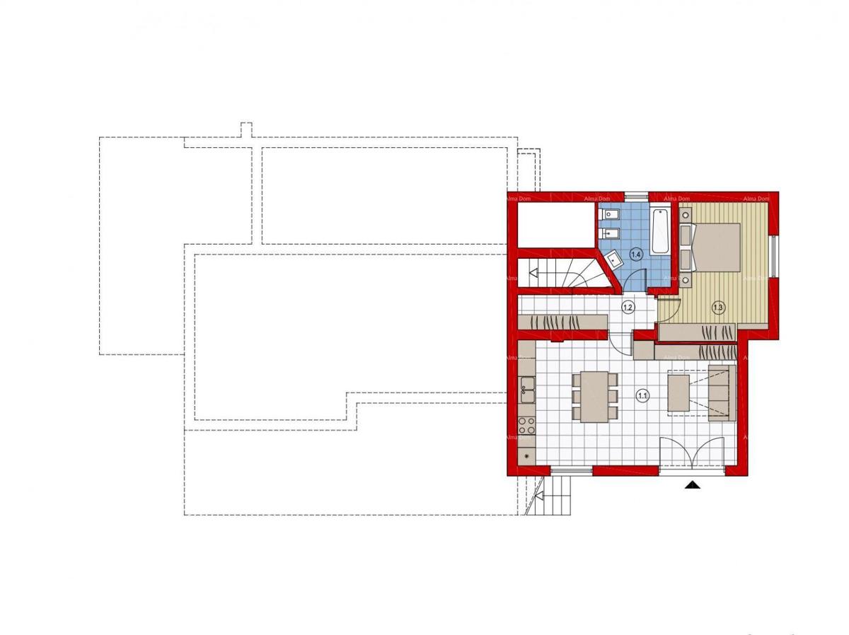
REC ID# 1231944 - LIŽNJAN