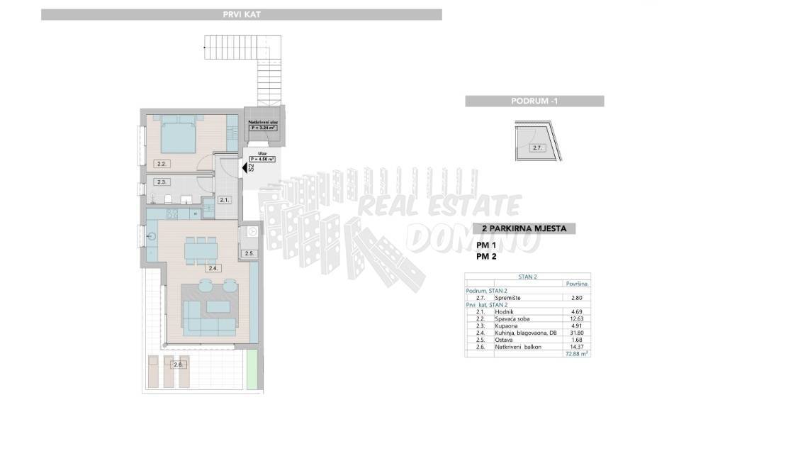
REC ID# 1109780 - KRK