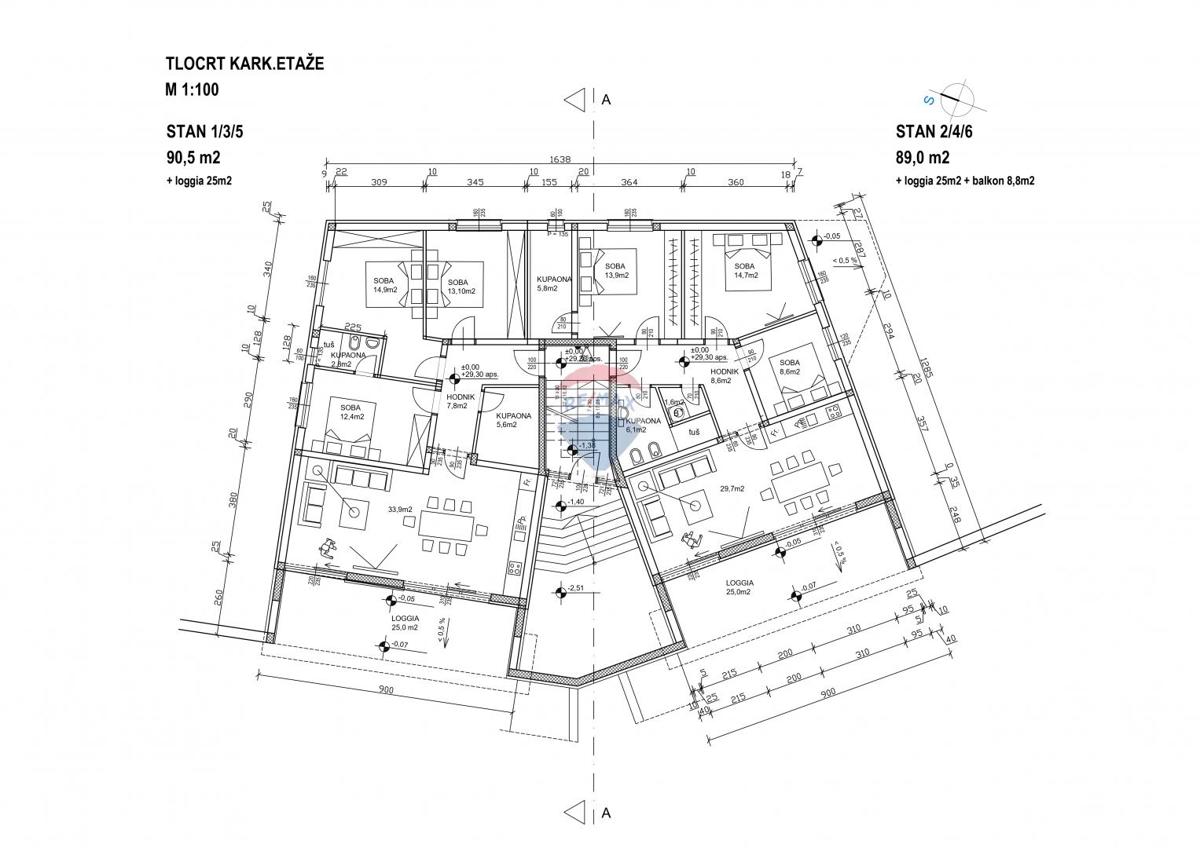
REC ID# 1167464 - KLENOVICA