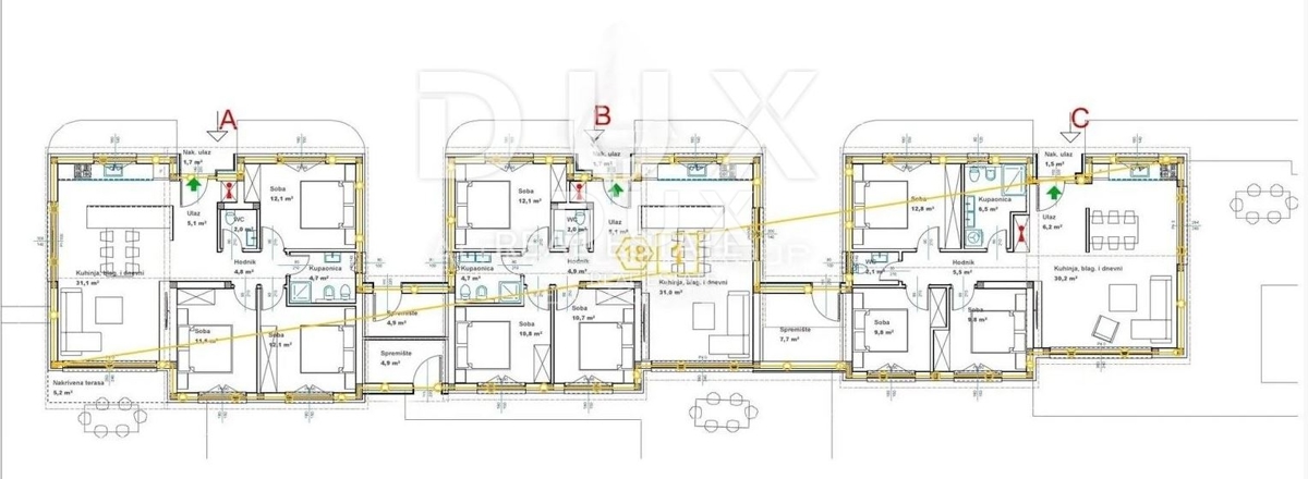
REC ID# 1161986 - KAŠTELIR