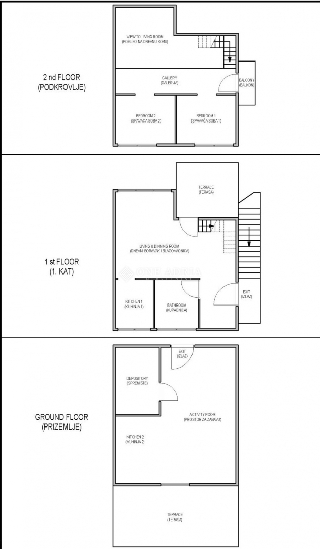
REC ID# 1236519 - HAJDINE