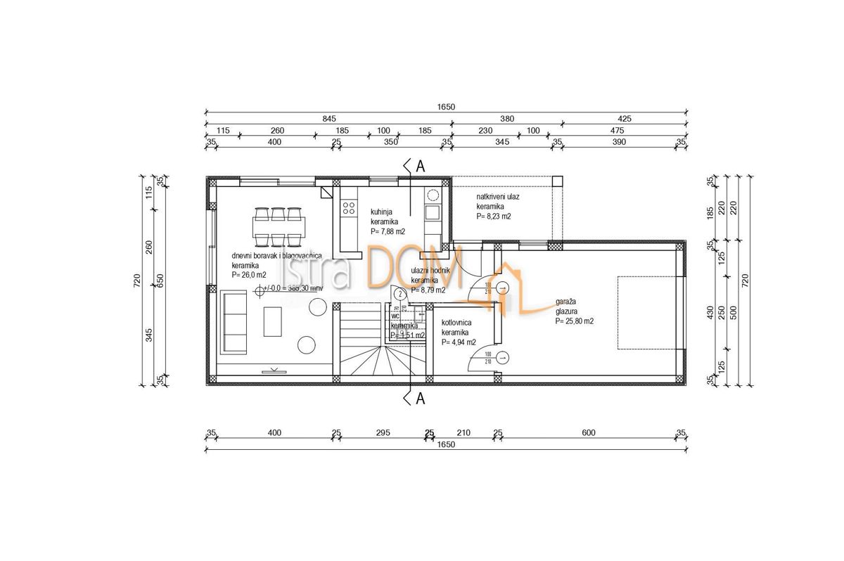
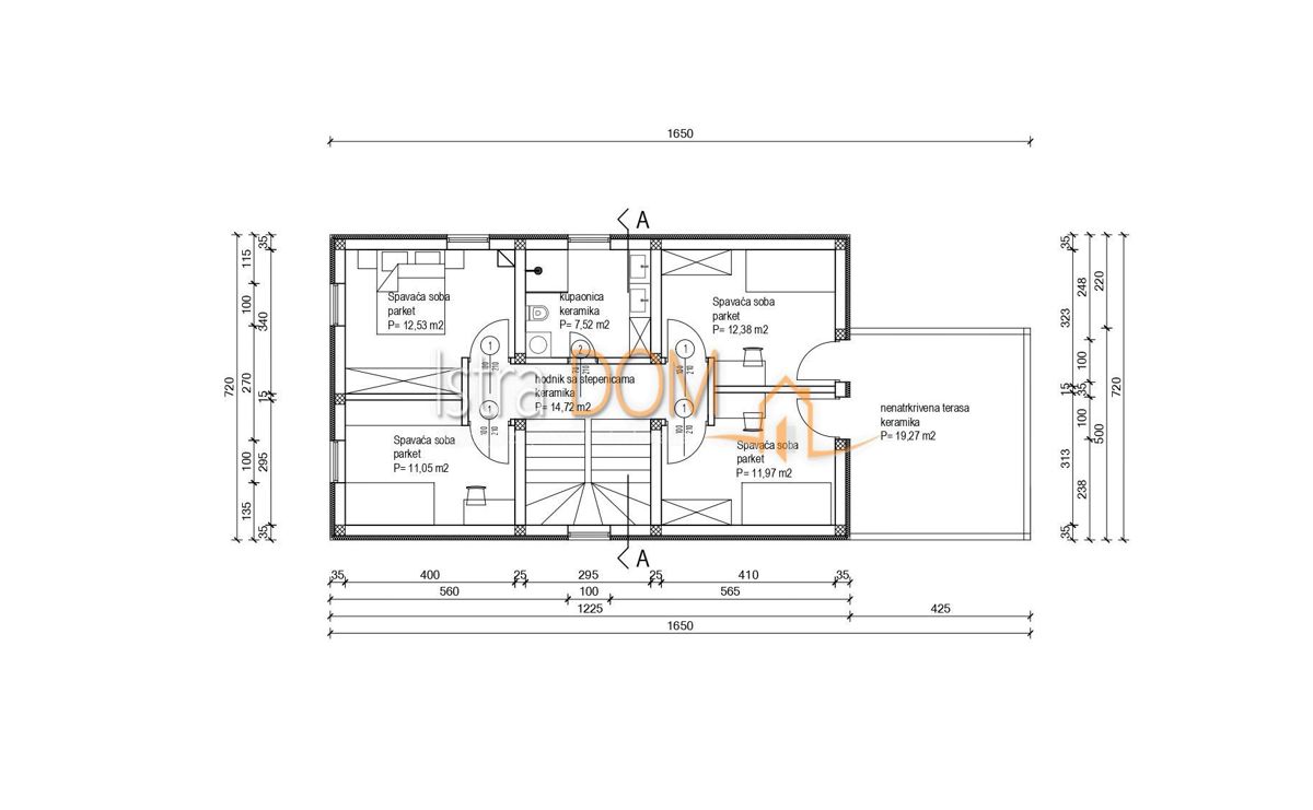
REC ID# 1218484 - DOMIJANIĆI