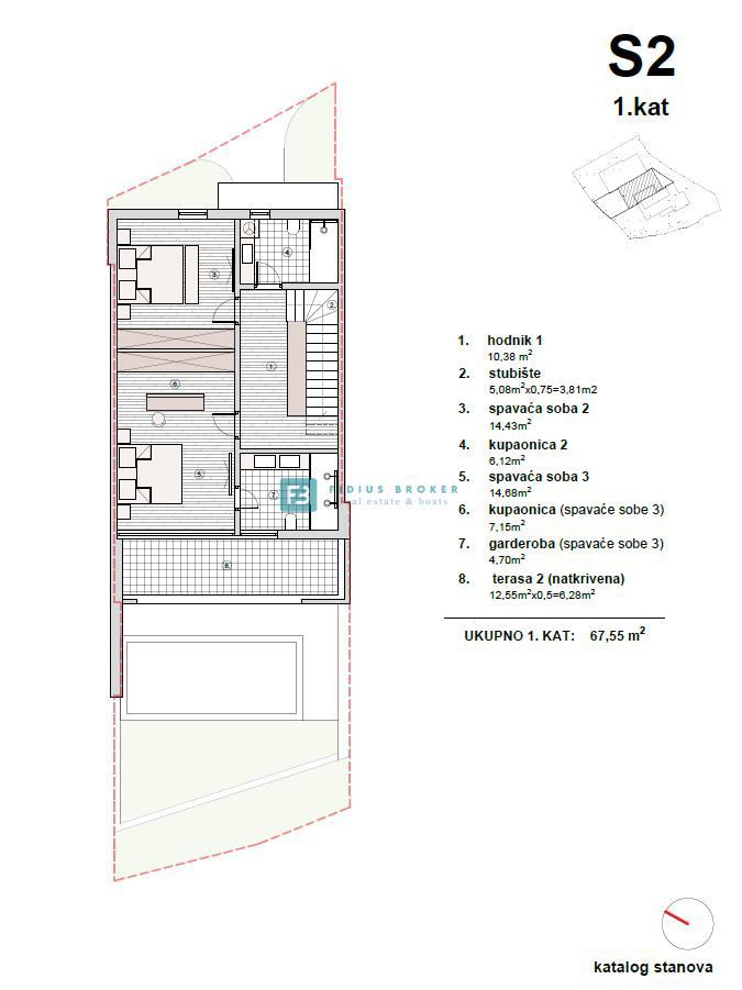
REC ID# 1245033 - VODICE