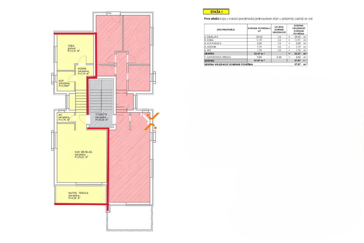
REC ID# 1185461 - SELINE