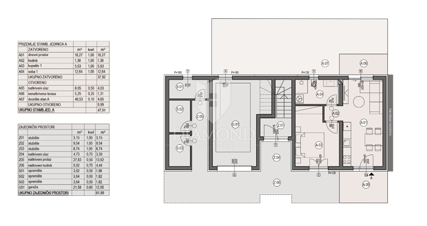
REC ID# 1247841 - PULA