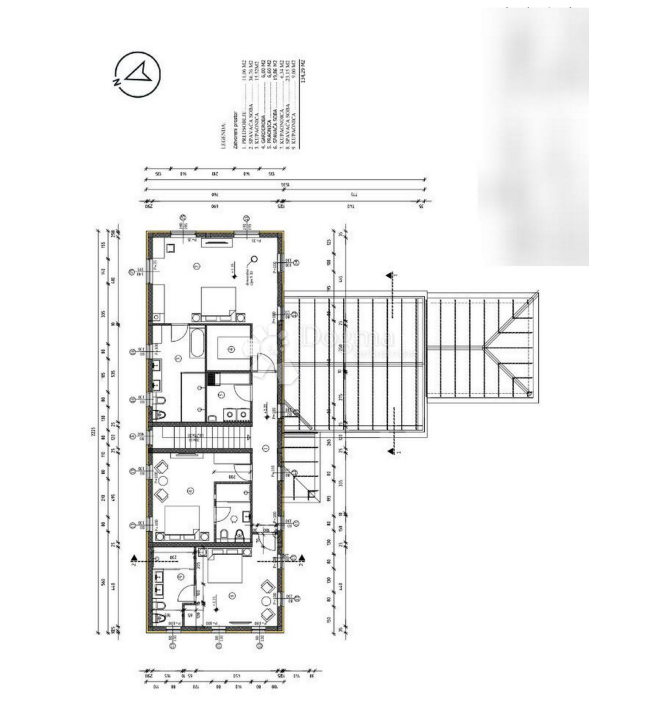
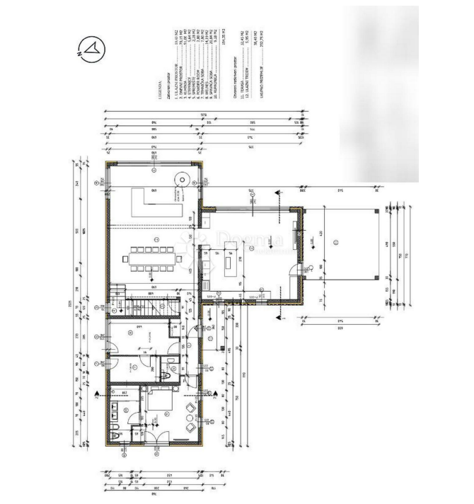
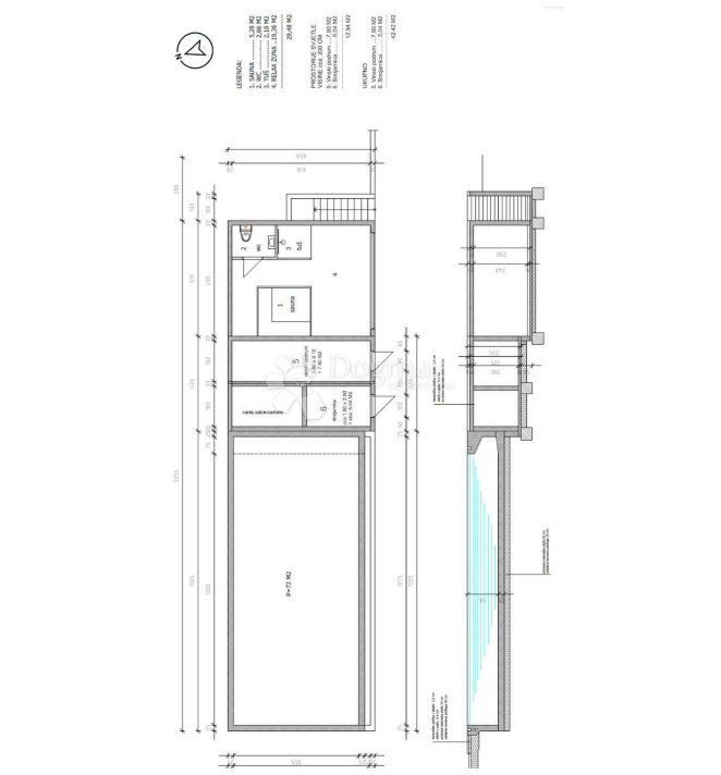
REC ID# 1233643 - MOTOVUN