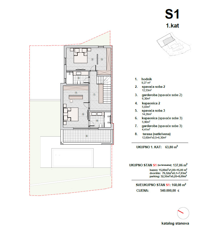
REC ID# 1196867 - VODICE