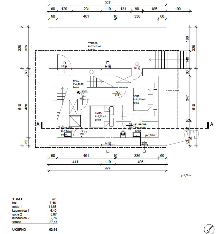
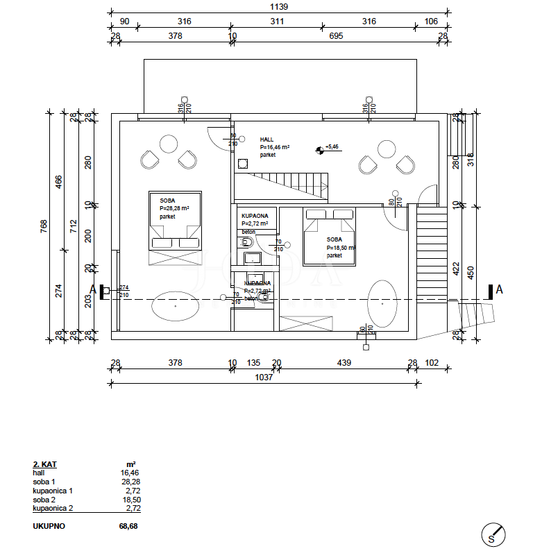
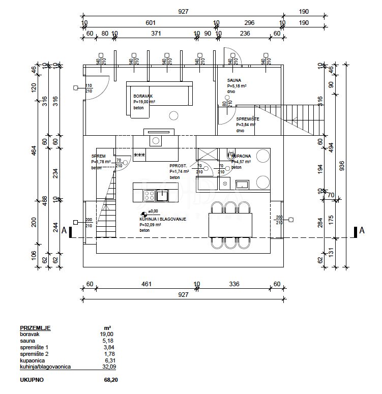
REC ID# 975078 - DOBRINJ