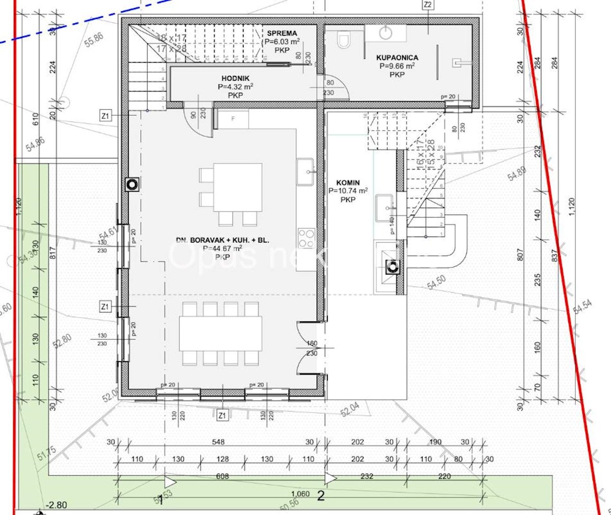
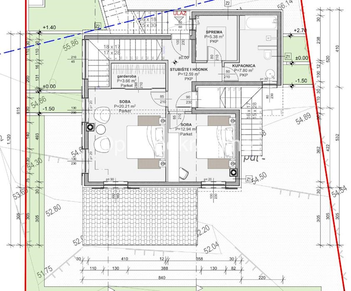
REC ID# 1233033 - ŽULJANA