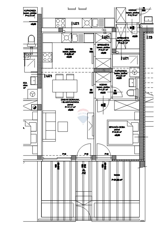
REC ID# 1225389 - ŽABORIĆ