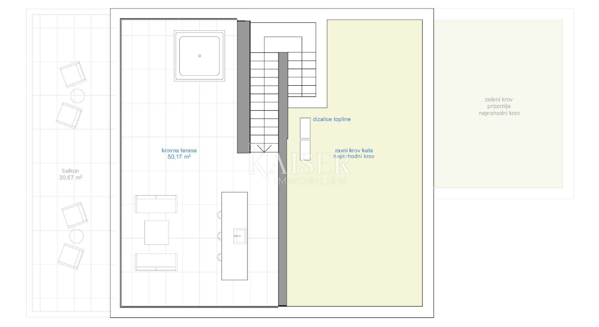
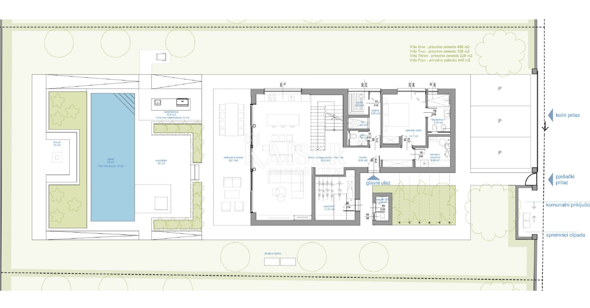
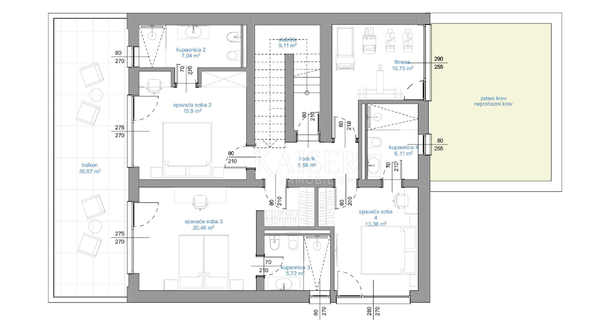
REC ID# 1241310 - POREČ