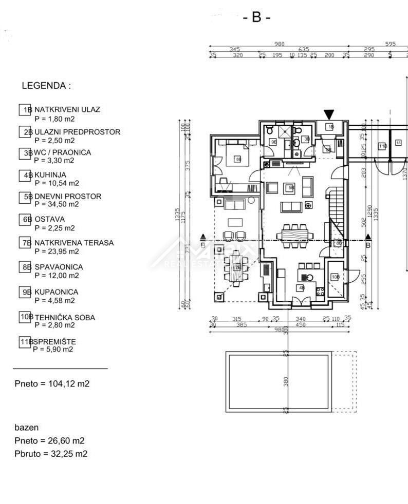
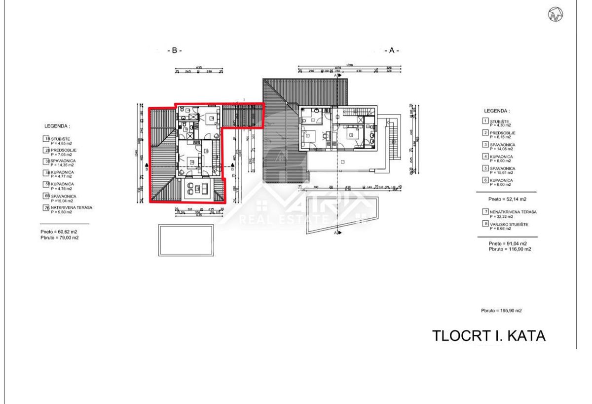
REC ID# 1231644 - NOVIGRAD