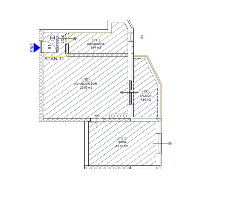
REC ID# 1023621 - KASTAV