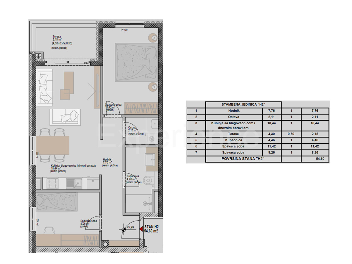
REC ID# 1261246 - POREČ