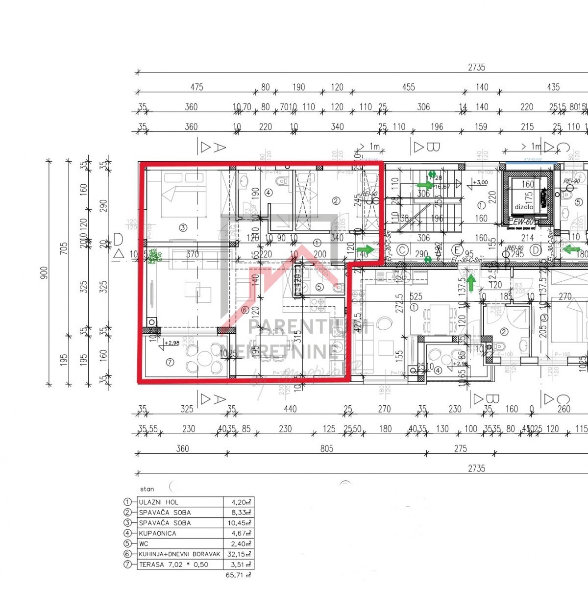
REC ID# 1220810 - POREČ