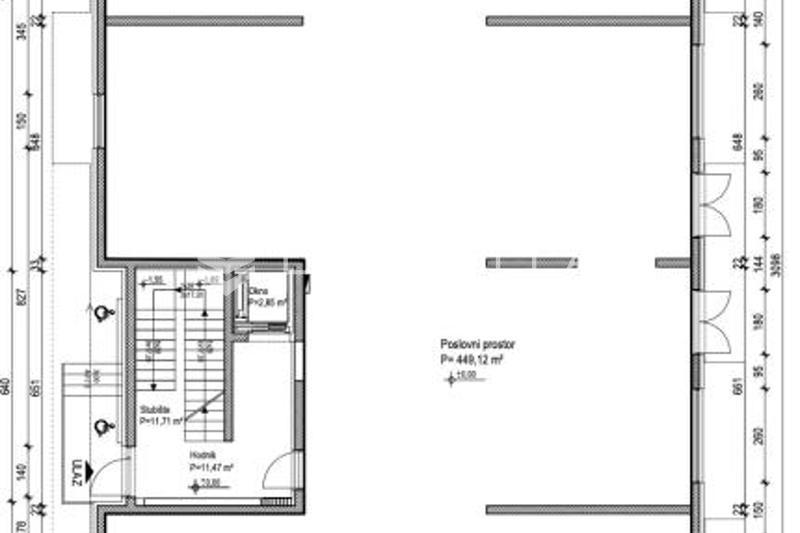
REC ID# 1238441 - JANKOMIR