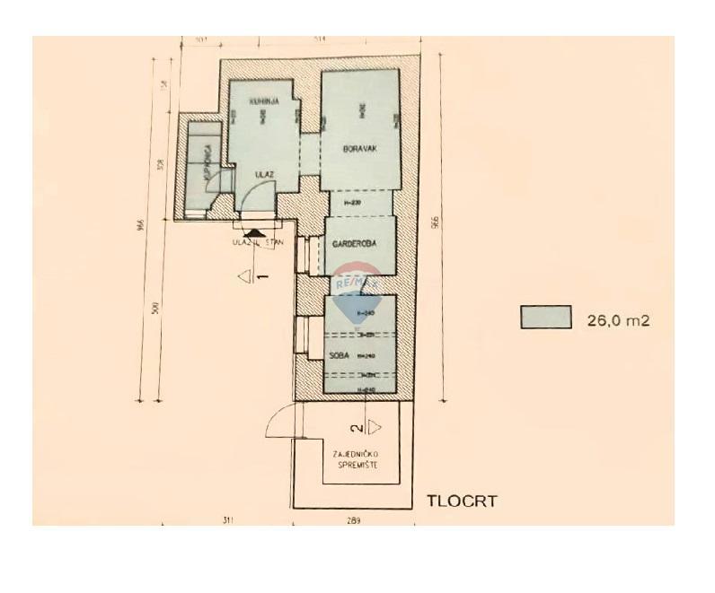
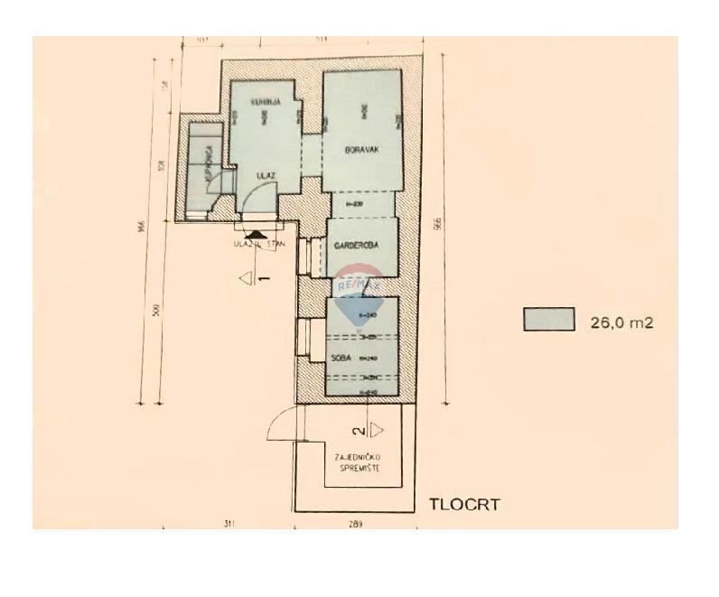
REC ID# 1248807 - DONJI GRAD