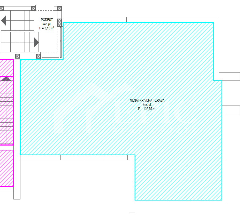
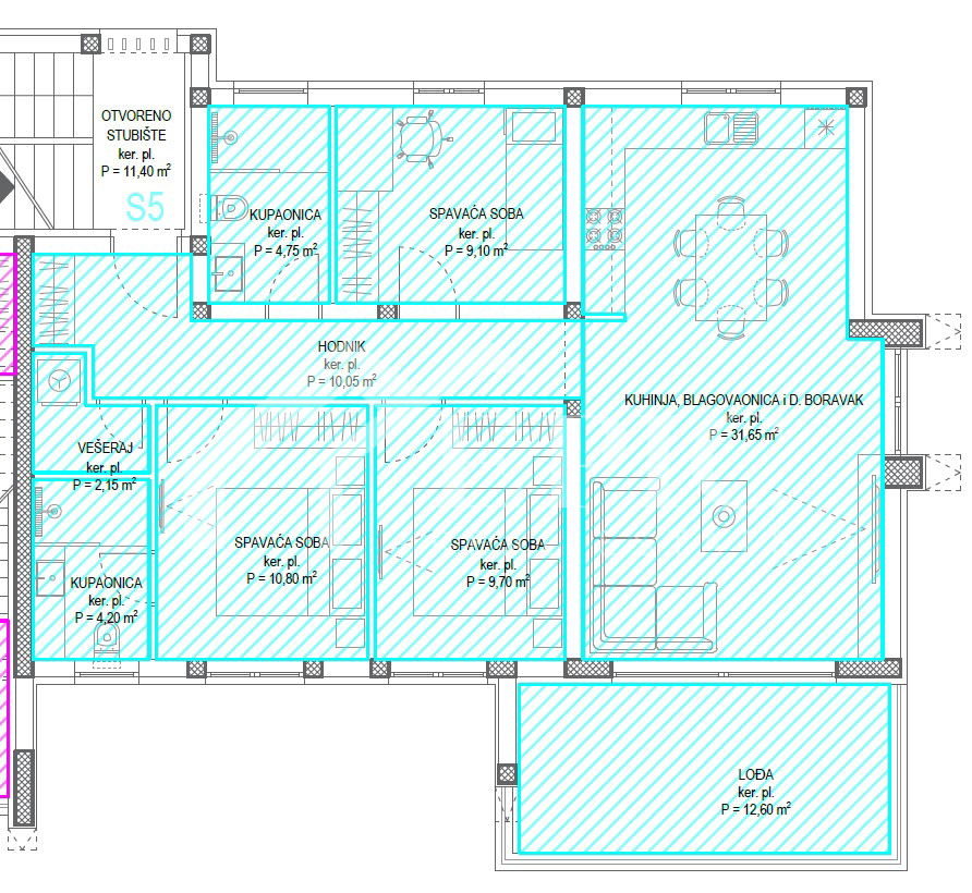
REC ID# 1222750 - DIKLO