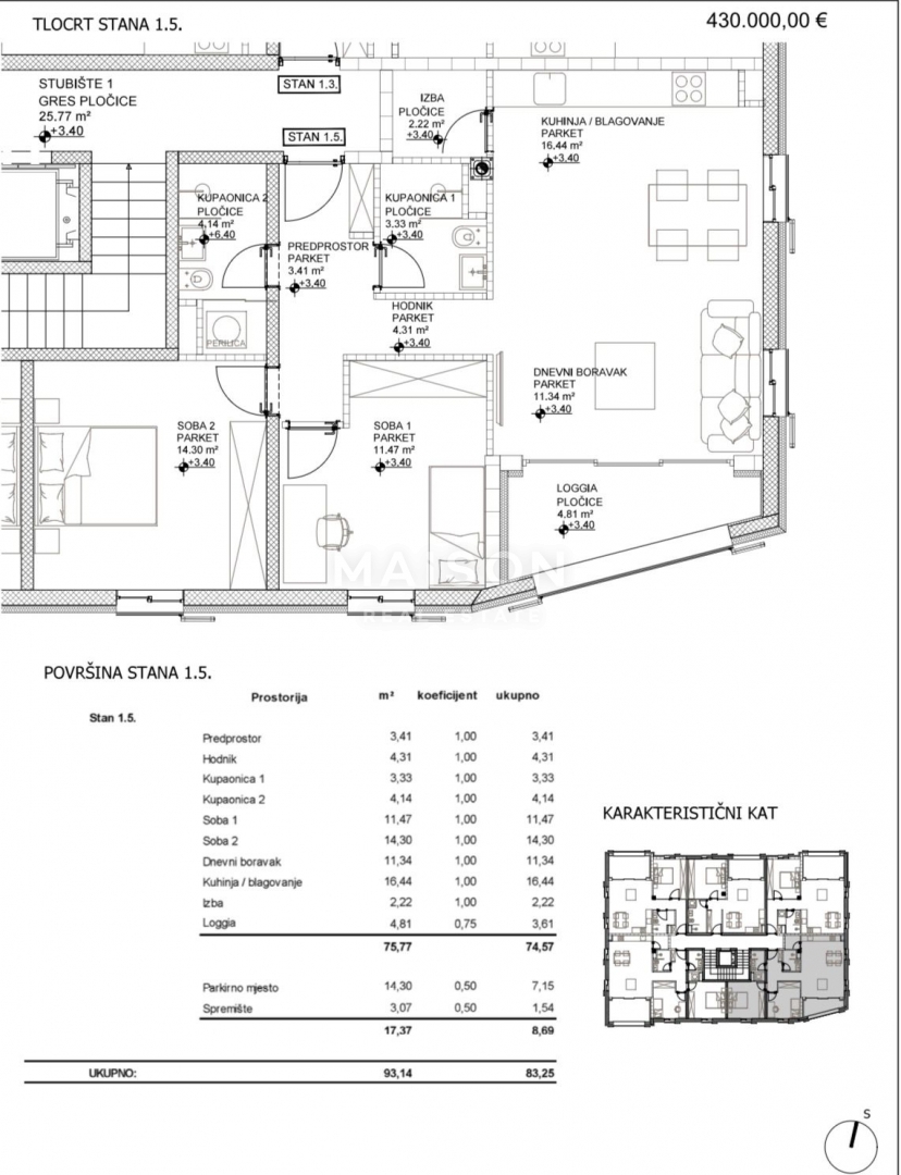
REC ID# 1249981 - CRES