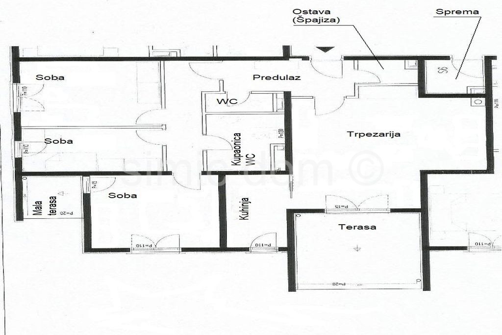
REC ID# 1256685 - BAČVICE